在此新春佳节来临之际,淄博义天热能环保设备有限公司携全体员工向全国各地合作伙伴以及广大的客户朋友致以衷心的问候和良好的祝愿!祝大家在新的一年里和气致祥、生活美满、家庭康泰,万事如意!
单段式煤气发生炉
单段式煤气发生炉热煤气站
单段式煤气发生炉冷煤气站(无烟煤)
单段式煤气发生炉冷煤气站(烟煤)
单段式煤气发生炉配件
单段式煤气发生炉技术参数
两段式煤气发生炉
两段式煤气发生炉热脱焦油煤气站
两段式煤气发生炉冷煤气站
两段式煤气发生炉配件
两段式煤气发生炉技术参数
生物质气化炉
没有小类
直拨电话:
0533—2887361
0533—2887362
脱硫、脱销:
18853331566
煤气发生炉:
13665330789
传 真:
0533—2887362
QQ:
704016330
联系地址:
山东省淄博市张店区柳泉路13号
单段式煤气发生炉
>> CG1Q-1-B单段式煤气发生炉结构图(机械加煤)
产品编号:
931913416
产品名称:
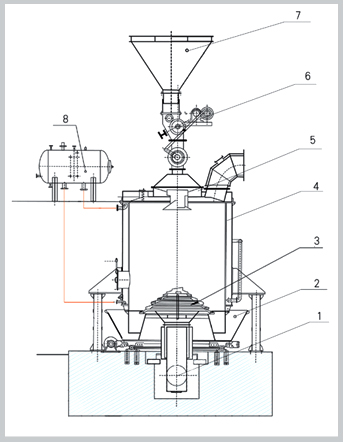
CG1Q-1-B单段式煤气发生炉结构图(机械加煤)
规 格:
产品备注:
产品类别:
单段式煤气发生炉
产 品 说 明
1、炉底三通鼓风管 2、灰盘及灰盘传动 3、炉栅 4、炉体 5、炉顶 6、机械加煤机 7、煤仓 8、汽包
点击数:3630 录入时间:2008/9/3 【
打印此页
】 【
关闭
】
友情链接:
束管监测系统
保温冒口
皮带扣
木片机
木片机
板式换热器
铸钢件
压力管道安装
非标压力容器
煤气发生炉厂家
二辊卷板机
宁波卷帘门
滨州卷帘门
商用炉灶
商用炉灶
电动小吃车
版权所有——淄博义天热能环保设备有限公司 电话:0533—2887361?2887362?传真:0533—2887362
脱硫、脱销:18853331566 煤气发生炉:13665330789 ?QQ:704016330
网站关键词:
褐煤煤气发生炉
,
型煤煤气发生炉
,
生物质气化炉